5 Robin Hollow LaneWesterly, RI 02891




Mortgage Calculator
Monthly Payment (Est.)
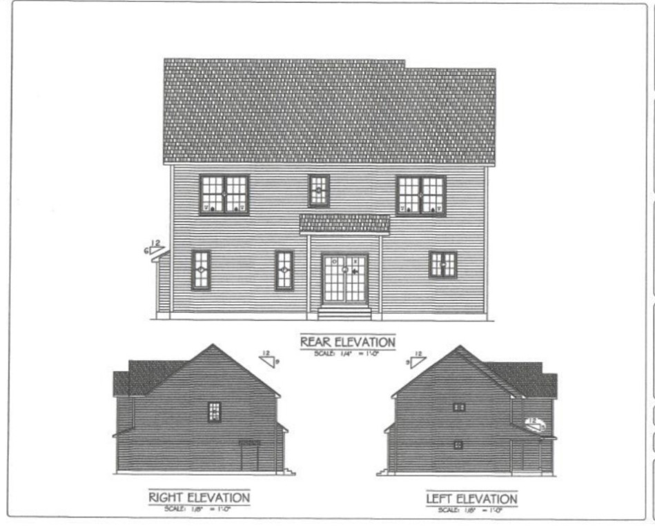
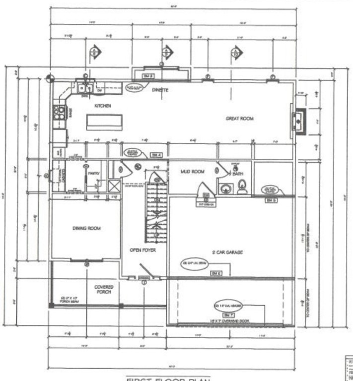
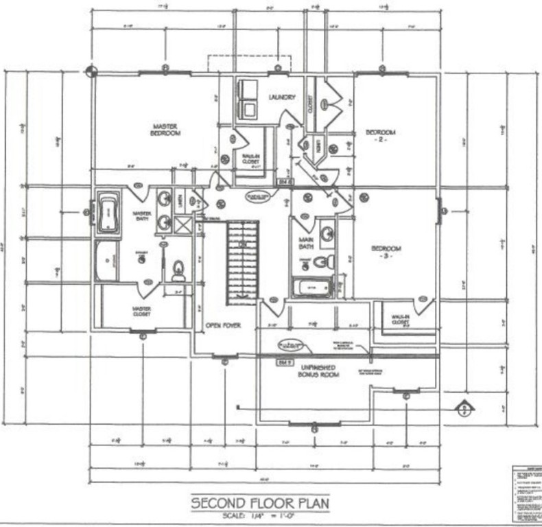
$4,056----New construction colonial home To be Built in Robin Hills. This thoughtfully designed 3-bedroom, 2.5-bathroom residence offers modern comfort, coastal charm, and room to grow. The first floor features a bright, open floor plan, seamlessly blending the kitchen, dining, and living areas perfect for everyday living and entertaining. Upstairs, the spacious second floor includes a primary ensuite retreat with a free standing soaking tub, walk-in shower, and double vanity your own private oasis. Two additional bedrooms, a full bath, and an unfinished bonus room provide flexibility for future expansion. Built with quality and low-maintenance living in mind, this home features vinyl siding, composite decking, Harvey windows, and energy-efficient systems including propane gas heat, central air, and a tankless hot water heater. Located just minutes from area beaches, downtown Westerly, and the scenic coastal communities of Weekapaug and Watch Hill, this home offers the best of both convenience and lifestyle. Completion timeline and customization options available upon request. Builder will consider build to suit options. Don't miss your opportunity to make this stunning new colonial your own! Builder is owner of equitable title and holds a Rhode Island Real Estate license . Subject to successful transfer of title.
| 3 weeks ago | Listing first seen on site | |
| 4 weeks ago | Listing updated with changes from the MLS® |
Listing information is provided by Participants of the State-Wide MLS of Rhode Island, Inc. IDX information is provided exclusively for personal, non-commercial use, and may not be used for any purpose other than to identify prospective properties consumers may be interested in purchasing. Information is deemed reliable but not guaranteed. Copyright 2025, State-Wide MLS of Rhode Island, Inc.
Last checked: 2025-11-28 01:01 AM UTC


Did you know? You can invite friends and family to your search. They can join your search, rate and discuss listings with you.