Save
Ask
Tour
Hide
$499,900
15 Days On Site
53 Whipple AvenueBarrington, RI 02806
For Sale|Single Family Residence|Active
3
Beds
1
Total Bath
1
Full Bath
2,184
SqFt
$229
/SqFt
1974
Built
Subdivision:
Barrington
County:
Bristol




Save
Ask
Tour
Hide
Mortgage Calculator
Monthly Payment (Est.)
$2,281Calculator powered by Showcase IDX, a Constellation1 Company. Copyright ©2025 Information is deemed reliable but not guaranteed.
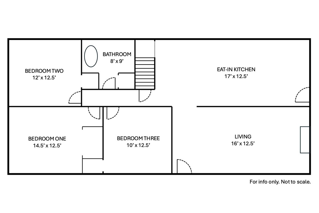
Well maintained 3 bedroom 1 bath home with hardwood and luxury vinyl flooring, fresh interior paint, move-in ready. Eat-in kitchen with new stove/oven and large pantry space. Full Finished basement with rec room, an office or 4th bedroom and bonus workshop space. Easy to maintain yard. Less than one mile to Barrington High School, Barrington Middle School, East Bay Bike Path, and recreation fields. Easy ranch-style living and conveniently located in the desirable Barrington school system.
Save
Ask
Tour
Hide
Listing Snapshot
Price
$499,900
Days On Site
15 Days
Bedrooms
3
Inside Area (SqFt)
2,184 sqft
Total Baths
1
Full Baths
1
Partial Baths
N/A
Lot Size
0.1699 Acres
Year Built
1974
MLS® Number
1401746
Status
Active
Property Tax
$6,151
HOA/Condo/Coop Fees
N/A
Sq Ft Source
Other
Friends & Family
Recent Activity
| 2 weeks ago | Status changed to Active | |
| 2 weeks ago | Listing updated with changes from the MLS® | |
| 2 weeks ago | Listing first seen on site |
General Features
Acres
0.1699
Foundation
Concrete Perimeter
Land Lease
No
Levels
One
Number Of Stories
1
Parking
PavedNo Garage
Parking Spaces
4
Property Sub Type
Single Family Residence
SqFt Above
1092
SqFt Below
1092
SqFt Total
2184
Style
Ranch
Utilities
Sewer ConnectedWater Connected
Interior Features
Appliances
DryerDishwasherGas Water HeaterOvenRangeRefrigeratorRange HoodWater HeaterWasher
Basement
FullFinished
Electric
Circuit Breakers100 Amp Service
Fireplace
Yes
Fireplace Features
Masonry
Fireplaces
1
Flooring
Ceramic TileHardwoodVinyl
Heating
Natural GasBaseboard
Laundry Features
Laundry Room
Bathroom
Level - First
Bedroom 1
Level - First
Bedroom 2
Level - First
Bedroom 3
Level - First
Kitchen
Level - FirstFeatures - Eat-in Kitchen
Living Room
Level - First
Office
Level - Lower
Recreation
Level - Lower
Workshop
Level - Lower
Save
Ask
Tour
Hide
Exterior Features
Construction Details
Vinyl Siding
Other Structures
Workshop
Community Features
Community Features
Golf
Listing courtesy of Feng Lei of Green Island Realty, Inc. (401) 286-8898
Listing information is provided by Participants of the State-Wide MLS of Rhode Island, Inc. IDX information is provided exclusively for personal, non-commercial use, and may not be used for any purpose other than to identify prospective properties consumers may be interested in purchasing. Information is deemed reliable but not guaranteed. Copyright 2025, State-Wide MLS of Rhode Island, Inc.
Last checked: 2025-12-29 10:41 AM UTC
Listing information is provided by Participants of the State-Wide MLS of Rhode Island, Inc. IDX information is provided exclusively for personal, non-commercial use, and may not be used for any purpose other than to identify prospective properties consumers may be interested in purchasing. Information is deemed reliable but not guaranteed. Copyright 2025, State-Wide MLS of Rhode Island, Inc.
Last checked: 2025-12-29 10:41 AM UTC
Neighborhood & Commute
Source: Walkscore
Save
Ask
Tour
Hide


Did you know? You can invite friends and family to your search. They can join your search, rate and discuss listings with you.