1037 Great RoadLincoln, RI 02865




Mortgage Calculator
Monthly Payment (Est.)
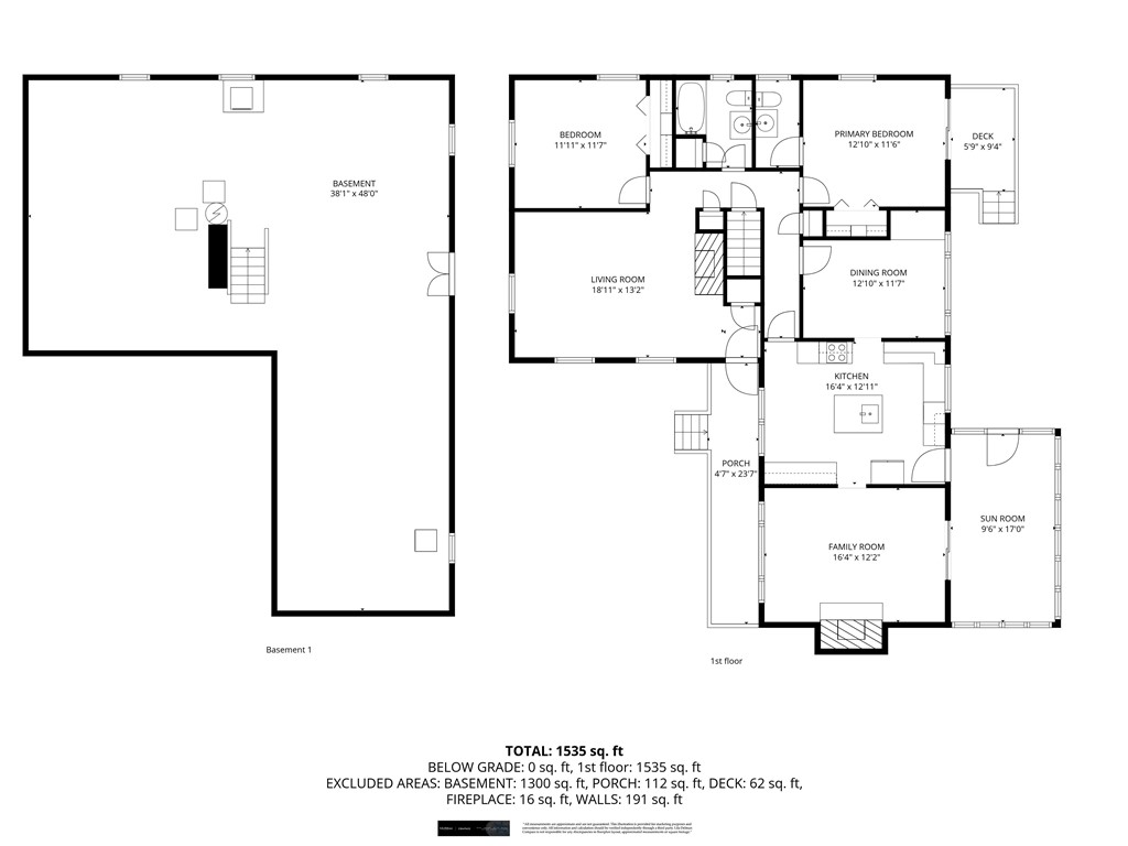
$2,277Welcome to this delightful two-bedroom home in the lovely Lime Rock section of Lincoln. Built in 1970, this property offers 1,472 square feet of comfortable living space filled with warmth and character. A sweet front porch welcomes you inside, where you'll find a spacious living room, a cozy den, 1 full and 1 half bath, and a bright sunporch perfect for enjoying a quiet morning or afternoon light. Set on a generous 0.80-acre lot, the property's idyllic backyard offers wonderful space for play, gardening, or entertaining. Two outbuildings (one with two stalls) provide exciting possibilities transform them into a workshop, studio, or event-ready barn. For an added touch of tranquility, restore the backyard koi pond and create your own peaceful retreat. A full basement adds storage and versatility, and the home is conveniently connected to municipal water and sewer. Nestled in one of Lincoln's most desirable locations, this property blends timeless New England charm with wonderful opportunity.
| a month ago | Status changed to Active Under Contract | |
| a month ago | Listing updated with changes from the MLS® | |
| 2 months ago | Listing first seen on site |
Listing information is provided by Participants of the State-Wide MLS of Rhode Island, Inc. IDX information is provided exclusively for personal, non-commercial use, and may not be used for any purpose other than to identify prospective properties consumers may be interested in purchasing. Information is deemed reliable but not guaranteed. Copyright 2026, State-Wide MLS of Rhode Island, Inc.
Last checked: 2026-02-05 07:33 AM UTC


Did you know? You can invite friends and family to your search. They can join your search, rate and discuss listings with you.